Masquer l'assortiment Assortiment
Contacts

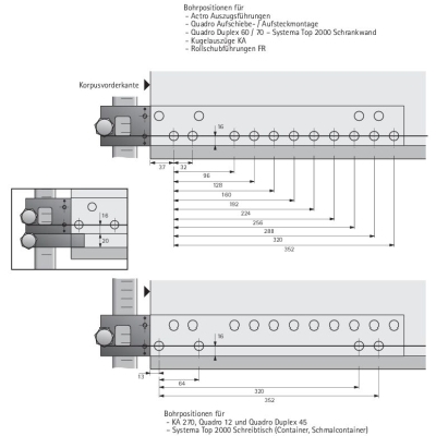
HETTICH 44763 Accura gabarit pour poignées

Code d'assortiment 106809
Prix ​​de base pour pcs
271,29 EUR 328,26 EUR avec TVA
Sur commande
Acheter
Marque
Hettich
Code de groupe
114003
Unité (MJ)
pcs
Extensibilité
1 pcs
Emballage
1 pcs
Description et paramètres

Gabarit Accura pour poignées, ensemble complet comprenant :

2× 105238 corps de perçage Accura avec manchon de perçage 5mm

1× 105540 moulure Accura en mm et pouces de longueur 500mm

1× 119123 butée réglable pour façades ou portes

Derniers articles consultés